تضم المنطقة الحرة سرت مباني إدارية وخدمية متطورة مخصصة للشركات العاملة، وكالات الملاحة، المستثمرين، والمطورين، حيث تم تصميمها وفق أعلى المعايير لتوفير بيئة عمل مثالية، وهي جاهزة للاستخدام فورًا.

كما تشمل المنطقة وحدات سكنية فاخرة مجهزة بكافة وسائل الراحة، لتلبية احتياجات القاطنين والزوار، مما يعزز جودة الحياة ويوفر بيئة سكنية متكاملة تجمع بين الفخامة والراحة.
تشمل المنطقة 11 منطقة تخصصية وخدمية، وهي:
- الميناء البحري والمنطقة التخزينية.
- منطقة الخدمات المالية.
- المنطقة الصناعية.
- المنطقة السياحية.
- منطقة الصناعات التحويلية.
- المنطقة النفطية.
- المنطقة الإعلامية.
- المدينة الذكية.
- محطات المياه ومعالجة الصرف.
- محطات الكهرباء والمياه.
- المباني الادارية: تتكون المبنى الرئيسي لإدارة المنطقة والمباني الخدمية وعددها (15) مبنى.
مواقع ساحات التخزين الداخلية والخارجية
ساحة داخلية بمساحة 2.8 هكتار
ساحة خارجية بمساحة 75 هكتار
ساحة خارجية بمنطقة الويغ بمساحة 40 هكتار

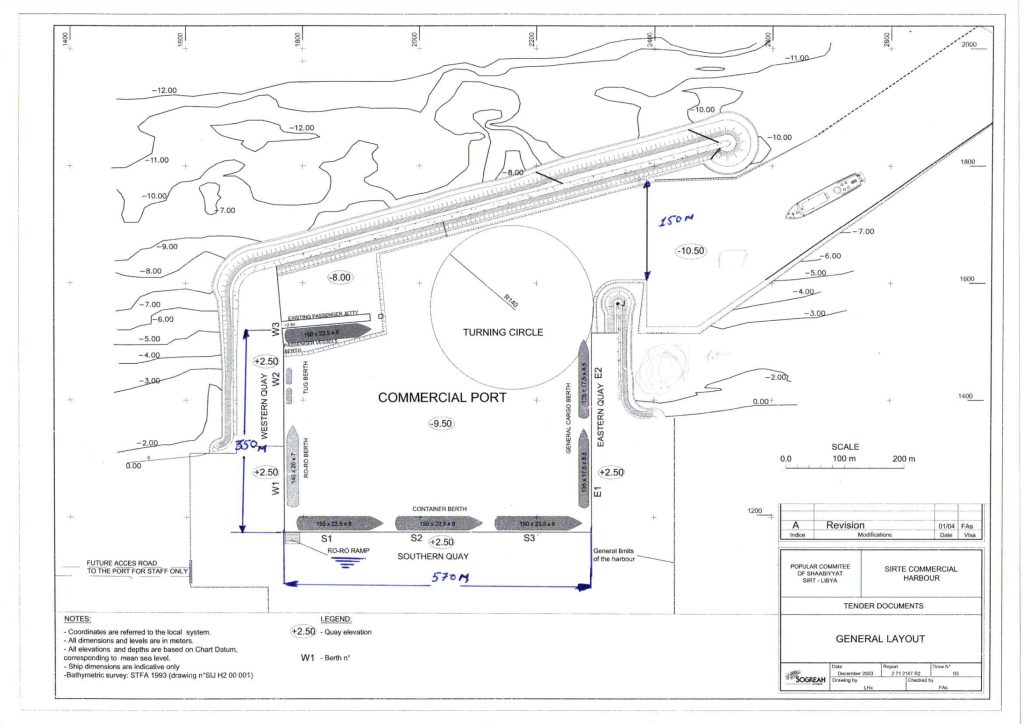
المواصفات التشغيلية للميناء
– السعة التشغيلية السنوية 2 مليون طن.
– القدرة على استقبال 8 سفن تجارية في آن واحد.
– الأعماق التصميمية للميناء:
- مدخل الميناء 11 متر
- الحوض ومنطقة الدوران 10 متر
- بجانب الأرصفة 9 متر
🔹 قطر منطقة الدوران 280 متر.
🔹 الغاطس 7.5 متر.
🔹 حمولة السفينة القصوى 17,000 طن.
🔹 طول السفينة 170 متر.
🔹 عرض السفينة 28.5 متر.
اطوال الأرصفة
الرصيف الغربي بطول 350 متر
الرصيف الجنوبي بطول 570 متر
الرصيف الشرقي بطول 370 متر
رصيف (RORO ) 152 متر
نسبة الإنجاز في الأرصفة
- الرصيف الغربي 350 متر : نسبة الإنجاز 100% (جاهز للتشغيل).
- رصيف RO-RO 152 متر نسبة الإنجاز 100% (جاهز للتشغيل).
- الرصيف الجنوبي: 550 متر نسبة الإنجاز 35% (تقدم مستمر).
- الرصيف الشرقي: 340 متر نسبة الإنجاز 35% (تقدم مستمر).
- أعمال التكريك: الإنجاز 100% (لضمان الأعماق التشغيلية المثلى).
الهياكل البحرية:
- حاجز أمواج رئيسي بطول 1150 متر يوفر حماية للميناء
- . قطر منطقة الدوران: 280 متر لتسهيل حركة السفن.
